г. Ярославль, ул. Железнодорожная, 124а +7 (4852) 33-66-36

Загрузка видео...

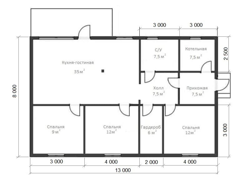
КАРКАСНЫЕ ДОМА 200мм.
Домокомплект

Изменить комплектацию
1 060 000 ₽ (10 192р/м2)
За наличный расчёт
1 378 000 ₽ (13 300р/м2)

КРАТКОЕ ОПИСАНИЕ

В комплектацию ДОМОКОМПЛЕКТ входит:
Изготовление на нашем производстве:
нижней обвязки; лаг пола и потолка; промежуточных стоек каркаса; ригелей; перемычек; стропильной системы; обвязочных балок; укосин; прогонов.
Домокомплект изготавливается из сухого строганного пиломатериала первого сорта в строгом соответствии с СП 31-105. По Вашему желанию возможны любые изменения в планировке и комплектации дома .


Подробное описание >>>

КАРКАСНЫЕ ДОМА 200мм.
Под крышу

Изменить комплектацию
2 280 000 ₽ (21 923р/м2)
За наличный расчёт
2 964 000 ₽ (28 500р/м2)
ФУНДАМЕНТ
specification-description

Винтовые сваи 108*2500*3,5

Количество свай согласно проекта. Высота надземной части 400мм. После монтажа свай производится засыпка ЦПС и монтаж металлического оголовка. Установка свай не требует тяжелой техники и исключает деформацию лопасти в процессе монтажа. Срок службы благодаря толщине металла и премиальной окраске составляет более 40 лет. Для сложных грунтов возможен монтаж свай длиной 3-4-5м.

УЗНАТЬ БОЛЬШЕ О ФУНДАМЕНТЕ
КАРКАСНАЯ СИСТЕМА
specification-description

Каркас  200мм  СУХОЙ СТРОГАННЫЙ сорт АВ

Весь пиломатериал хвойных пород древесины сосна, ель. Шаг балок, стоек, стропил – 575 мм. Высота потолка 1-го этажа 2500; мансарды 2300. Угол чердачной крыши 25гр. Высота продольной стены двускатной мансарды 600-800мм (угол ската 45гр). Высота продольной стены мансарды 1,5 этажа 1200мм (угол ската 30гр). 

-Нижняя обвязка – брус 150×100 (ест.вл) в два ряда и ребро жесткости 195х45; 

-Стойки каркаса, лаги пола первого этажа, чердачные лаги - доска 195х45 (сухая строг); 

-Стропильные балки; ригели; межэтажные балки – доска 145×45 (сухая строг); 

-Стойки перегородок  - доска 95*45 (сухая строг);

Кровельная обрешетка -- доска 95х45 с шагом 350.

УЗНАТЬ БОЛЬШЕ О СТРОГАННОЙ ДОСКЕ
КРОВЛЯ
specification-description

Профнастил кровельный (о,45мм)

Монтаж кровельного покрытия на диффузионную мембрану «ИЗОСПАН АМ» через контррейку 40*30. Установка ветровых металлических планок и конька. Устройство конькового уплотнителя. Карнизы и свесы кровли -- от 300мм. Устройство фальшстропил. Обрамление  карнизов и свесов кровли сухой строганной лобовой доской и металлическими ветровыми планками.

УЗНАТЬ БОЛЬШЕ ПРОФЛИСТЕ
НАРУЖНАЯ ОБШИВКА
specification-description

Имитация бруса 135*16 сорт "АВ"

Влажность 10-15%. Сорт соответствует ГОСТ 8242-88. Декорирование уголком и строганой доской 90*20. Наружная обшивка крепится  окс. винтовыми гвоздями к стойкам каркаса через диффузионную мембрану ИЗОСПАН АМ. 

УЗНАТЬ БОЛЬШЕ ОБ ИМИТАЦИИ БРУСА
ОКНА
specification-description

Устройство оконных проемов согласно проекта.

ВХОДНЫЕ И МЕЖКОМНАТНЫЕ ДВЕРИ
specification-description

Входная дверь металлическая "ОПТИМА" 2000*800 с ручкой и замком

Дверь утепленная. С наружи -- металл, внутри -- вставка из МДФ. Дверь оснащена двумя замками, глазком, ручкой для открывания.

Межкомнатные двери: устройство проемов согласно пректа.

ПРИМЕЧАНИЯ:
specification-description

-Строительство возможно в радиусе до 100 км от Ярославля

-В базовую комплектацию не включена: доставка материалов и вагон-бытовки; крылечки, пристройки (не входящие в площадь дома, указанную в карточке проекта); малярные работы; цокольные ступени; мансардная лестница; инженерные коммуникации

-По семейной ипотеки полная стоимость дома не может превышать 6.000.000р

КРАТКОЕ ОПИСАНИЕ

В комплектацию ПОД КРЫШУ входит:
Фундамент на винтовых сваях;
фрезеровка каркаса на нашей производственной базе;
сборка каркаса дома из сухого строганного пиломатериала первого сорта;
наружная обшивка дома;
кровля крыши;
установка входной двери.
Строительство ведётся в строгом соответствии с СП 31-105. По Вашему желанию возможны любые изменения в планировке и комплектации дома .


Подробное описание >>>

КАРКАСНЫЕ ДОМА 200мм.
Под ключ

Изменить комплектацию
3 600 000 ₽ (34 615р/м2)
За наличный расчёт
4 680 000 ₽ (45 000р/м2)
ФУНДАМЕНТ
specification-description

Винтовые сваи 108*2500*3,5

Количество свай согласно проекта. Высота надземной части 400мм. После монтажа свай производится засыпка ЦПС и монтаж металлического оголовка. Установка свай не требует тяжелой техники и исключает деформацию лопасти в процессе монтажа. Срок службы благодаря толщине металла и премиальной окраске составляет более 40 лет. Для сложных грунтов возможен монтаж свай длиной 3-4-5м.

УЗНАТЬ БОЛЬШЕ О ФУНДАМЕНТЕ
КАРКАСНАЯ СИСТЕМА
specification-description

Каркас  200мм  СУХОЙ СТРОГАННЫЙ сорт АВ

Весь пиломатериал хвойных пород древесины сосна, ель. Шаг балок, стоек, стропил – 575 мм. Высота потолка 1-го этажа 2500; мансарды 2300. Угол чердачной крыши 25гр. Высота продольной стены двускатной мансарды 600-800мм (угол ската 45гр). Высота продольной стены мансарды 1,5 этажа 1200мм (угол ската 30гр). 

-Нижняя обвязка – брус 150×100 (ест.вл) в два ряда и ребро жесткости 195х45; 

-Стойки каркаса, лаги пола первого этажа, чердачные лаги - доска 195х45 (сухая строг); 

-Стропильные балки; ригели; межэтажные балки – доска 145×45 (сухая строг); 

-Стойки перегородок  - доска 95*45 (сухая строг);

Кровельная обрешетка -- доска 95х45 с шагом 350.

УЗНАТЬ БОЛЬШЕ О СТРОГАННОЙ ДОСКЕ
КРОВЛЯ
specification-description

Профнастил кровельный (о,45мм)

Монтаж кровельного покрытия на диффузионную мембрану «ИЗОСПАН АМ» через контррейку 40*30. Установка ветровых металлических планок и конька. Устройство конькового уплотнителя. Карнизы и свесы кровли -- от 300мм. Устройство фальшстропил. Обрамление  карнизов и свесов кровли сухой строганной лобовой доской и металлическими ветровыми планками.

УЗНАТЬ БОЛЬШЕ ПРОФЛИСТЕ
НАРУЖНАЯ ОБШИВКА
specification-description

Имитация бруса 135*16 сорт "АВ"

Влажность 10-15%. Сорт соответствует ГОСТ 8242-88. Декорирование уголком и строганой доской 90*20. Наружная обшивка крепится  окс. винтовыми гвоздями к стойкам каркаса через диффузионную мембрану ИЗОСПАН АМ. 

УЗНАТЬ БОЛЬШЕ ОБ ИМИТАЦИИ БРУСА
ТЕПЛОИЗОЛЯЦИЯ
specification-description

ПЛИТНЫЙ УТЕПЛИТЕЛЬ "КНАУФ"

-Перекрытие первого этажа -- 200мм;

-Стены первого этажа и мансарды -- 200мм;

-Чердачное перекрытие -- 200мм

-Скаты крыши мансарды -- 150мм

УЗНАТЬ БОЛЬШЕ ОБ УТЕПЛИТЕЛЕ
ПОЛЫ
specification-description

Доска пола 135х28 сорт "АВ" 

Влажность 10-15%.  Доска пола изготовлена из еловых заготовок зимней рубки на Архангельском лесозаготовительном комбинате. Сушка древесины в Финских сушильных камерах  Tekmawood Jartek. Изготовление профиля на современных семишпиндельных станках. Beaver PRO. Монтаж через пароизоляционную пленку ИЗОСПАН "В" fix с двойной интегрированной клейкой лентой по всей длине рулона. Настил пола состветствует требованиям по толщине  СП 31-105.

Черновой пол: Черновой пол: обрезная доска  100*25 1-й сорт с шагом 50.

УЗНАТЬ БОЛЬШЕ О ДОСКЕ ПОЛА
ВНУТРЕННЯЯ ОБШИВКА
specification-description

Гипсокартон влагостойкий 12мм.

Область обшивки (в один слой):  стены первого и мансардного этажа, перегородки. (потолки и скаты мансарды не обшиваются). Монтаж листов производится на контррейку 40*30. В качестве пароизоляции используется пароизоляционная пленка ИЗОСПАН "В" fix с двойной интегрированной клейкой лентой по всей длине рулона. (Шукатурные работы, откосы, заделка швов не производится)

УЗНАТЬ БОЛЬШЕ О ГИПСОКАРТОНЕ
ОКНА
specification-description

Окна ПВХ. Профиль ВЕКА.

Двухкамерный стеклопакет. Размер, конфигурация и количество согласно проекта.

ВХОДНЫЕ И МЕЖКОМНАТНЫЕ ДВЕРИ
specification-description

Входная дверь металлическая "ОПТИМА" 2000*800 с ручкой и замком

Дверь утепленная. С наружи -- металл, внутри -- вставка из МДФ. Дверь оснащена двумя замками, глазком, ручкой для открывания.

Межкомнатные двери: устройство проемов согласно пректа.

ПРИМЕЧАНИЯ:
specification-description

-Строительство возможно в радиусе до 100 км от Ярославля

-В базовую комплектацию не включена: доставка материалов и вагон-бытовки; крылечки, пристройки (не входящие в площадь дома, указанную в карточке проекта); малярные работы; цокольные ступени; мансардная лестница; инженерные коммуникации

-По семейной ипотеки полная стоимость дома не может превышать 6.000.000р

КРАТКОЕ ОПИСАНИЕ

В комплектацию ПОД КЛЮЧ входит:
Фундамент на винтовых сваях;
фрезеровка каркаса на нашей производственной базе;
сборка каркаса дома из сухого строганного пиломатериала первого сорта;
наружная обшивка дома;
кровля крыши;
теплоизоляция стен, пола, потолков;
настил пола;
внутренняя обшивка стен;
монтаж окон и входной двери.
Строительство ведётся в строгом соответствии с СП 31-105. По Вашему желанию возможны любые изменения в планировке и комплектации дома .


Подробное описание >>>
Примеры наших работ
×

Поиск проектов

Общая площадь м2

Количество спален

Цена руб.

Обратный звонок
Ваше имя*
Номер телефона*
Нажимая на кнопку, вы даёте согласие на обработку персональных данных и соглашаетесь с политикой конфиденциальности
close