г. Ярославль, ул. Железнодорожная, 124а +7 (4852) 33-66-36

Загрузка видео...

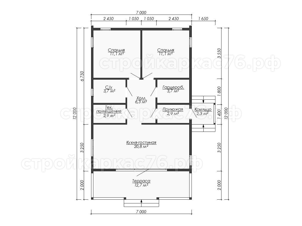
БАРН-ХАУС.
Домокомплект

850 000 ₽ (10 119р/м2)
За наличный расчёт
1 105 000 ₽ (13 200р/м2)

КРАТКОЕ ОПИСАНИЕ

В комплектацию ДОМОКОМПЛЕКТ входит:
Изготовление на нашем производстве:
нижней обвязки; лаг пола и потолка; промежуточных стоек каркаса; ригелей; перемычек; стропильной системы; обвязочных балок; укосин; прогонов.
Домокомплект изготавливается из сухого строганного пиломатериала первого сорта в строгом соответствии с СП 31-105. По Вашему желанию возможны любые изменения в планировке и комплектации дома .


Подробное описание >>>

БАРН-ХАУС.
Под крышу

2 050 000 ₽ (24 405р/м2)
За наличный расчёт
2 665 000 ₽ (31 700р/м2)
ФУНДАМЕНТ
specification-description

Винтовые сваи 108*2500*3,5

Количество свай согласно проекта. Высота надземной части 400мм. После монтажа свай производится засыпка ЦПС и монтаж металлического оголовка. Установка свай не требует тяжелой техники и исключает деформацию лопасти в процессе монтажа. Срок службы благодаря толщине металла и премиальной окраске составляет более 40 лет. Для сложных грунтов возможен монтаж свай длиной 3-4-5м.

УЗНАТЬ БОЛЬШЕ О ФУНДАМЕНТЕ
КАРКАСНАЯ СИСТЕМА
specification-description

Каркас 150мм СУХОЙ СТРОГАННЫЙ сорт АВ. 

Весь пиломатериал хвойных пород древесины сосна, ель. Шаг балок, стоек, стропил – 585 мм. Высота потолка 1-го этажа 2300; мансарды 2300. Угол  чердачной крыши 20гр; угол мансардной крыши 30гр. Высота продольной стены мансарды (при наличии) 1200мм. 

-Нижняя обвязка – двойная брус 150×100 (ест.вл)  и ребро жесткости 195х45; 

-Лаги пола первого и второго этажа, чердачные лаги - доска 145х45 (сухая строг); 

-Промежуточные стойки каркаса; стропильные балки; ригели – доска 145×45 (сухая строг); 

-Стойки перегородок  - доска 95*45 (сухая строг).

УЗНАТЬ БОЛЬШЕ О СТРОГАННОМ КАРКАСЕ
КРОВЛЯ
specification-description

КЛИКФАЛЬЦ 0,5 РЕ или ST15 (BARN)

Листы выполнены из металла «СЕВЕРСТАЛЬ». Прокатка выполняется на немецком оборудовании с выдерживанием геометрических размеров по всей плоскости листа. Погрешность по толщине металла – не более 0,02 мм.

УЗНАТЬ БОЛЬШЕ ПРОФЛИСТЕ
НАРУЖНАЯ ОБШИВКА ФРОНТОНОВ
specification-description

ИМИТАЦИЯ БРУСА 145х16 сорт АВ

Влажность 10-15%. Сорт соответствует ГОСТ 8242-88(1). Монтаж через влаговетрозащитную мембрану «ИЗОСПАН А» на контррейку 40*30. Обшивка соответствует требованиям по толщине СП 31-105.

УЗНАТЬ БОЛЬШЕ ОБ ИМИТАЦИИ БРУСА
ОКНА
specification-description

Устройство оконных проемов согласно проекта.

ВХОДНЫЕ И МЕЖКОМНАТНЫЕ ДВЕРИ
specification-description

Входные двери: ПВХ с наружной ламинацией "ГРАФИТ" и металлическая 2000*800 (согласно проекта)

Межкомнатные: МДФ 2000х800 согласно проекта

ПРИМЕЧАНИЯ:
specification-description

-Строительство возможно в радиусе до 100 км от Ярославля

-В базовую комплектацию не включена: доставка материалов и вагон-бытовки; крылечки, пристройки (не входящие в площадь дома, указанную в карточке проекта); малярные работы; цокольные ступени; мансардная лестница; инженерные коммуникации

-По семейной ипотеки полная стоимость дома не может превышать 6.000.000р

КРАТКОЕ ОПИСАНИЕ

В комплектацию ПОД КРЫШУ входит:
Фундамент на винтовых сваях;
фрезеровка каркаса на нашей производственной базе;
сборка каркаса дома из сухого строганного пиломатериала первого сорта;
наружная обшивка дома;
кровля крыши;
установка входной двери.
Строительство ведётся в строгом соответствии с СП 31-105. По Вашему желанию возможны любые изменения в планировке и комплектации дома .


Подробное описание >>>

БАРН-ХАУС.
Под ключ

3 420 000 ₽ (40 714р/м2)
За наличный расчёт
4 446 000 ₽ (52 900р/м2)
ФУНДАМЕНТ
specification-description

Винтовые сваи 108*2500*3,5

Количество свай согласно проекта. Высота надземной части 400мм. После монтажа свай производится засыпка ЦПС и монтаж металлического оголовка. Установка свай не требует тяжелой техники и исключает деформацию лопасти в процессе монтажа. Срок службы благодаря толщине металла и премиальной окраске составляет более 40 лет. Для сложных грунтов возможен монтаж свай длиной 3-4-5м.

УЗНАТЬ БОЛЬШЕ О ФУНДАМЕНТЕ
КАРКАСНАЯ СИСТЕМА
specification-description

Каркас 150мм СУХОЙ СТРОГАННЫЙ сорт АВ. 

Весь пиломатериал хвойных пород древесины сосна, ель. Шаг балок, стоек, стропил – 585 мм. Высота потолка 1-го этажа 2300; мансарды 2300. Угол  чердачной крыши 20гр; угол мансардной крыши 30гр. Высота продольной стены мансарды (при наличии) 1200мм. 

-Нижняя обвязка – двойная брус 150×100 (ест.вл)  и ребро жесткости 195х45; 

-Лаги пола первого и второго этажа, чердачные лаги - доска 145х45 (сухая строг); 

-Промежуточные стойки каркаса; стропильные балки; ригели – доска 145×45 (сухая строг); 

-Стойки перегородок  - доска 95*45 (сухая строг).

УЗНАТЬ БОЛЬШЕ О СТРОГАННОМ КАРКАСЕ
КРОВЛЯ
specification-description

КЛИКФАЛЬЦ 0,5 РЕ или ST15 (BARN)

Листы выполнены из металла «СЕВЕРСТАЛЬ». Прокатка выполняется на немецком оборудовании с выдерживанием геометрических размеров по всей плоскости листа. Погрешность по толщине металла – не более 0,02 мм.

УЗНАТЬ БОЛЬШЕ ПРОФЛИСТЕ
ТЕПЛОИЗОЛЯЦИЯ
specification-description

Плитный утеплитель "КНАУФ"

-Перекрытие первого этажа -- 150мм;

-Стены первого этажа и мансарды -- 150мм;

-Чердачное перекрытие -- 150мм

УЗНАТЬ БОЛЬШЕ ОБ УТЕПЛИТЕЛЕ
НАРУЖНАЯ ОБШИВКА ФРОНТОНОВ
specification-description

ИМИТАЦИЯ БРУСА 145х16 сорт АВ

Влажность 10-15%. Сорт соответствует ГОСТ 8242-88(1). Монтаж через влаговетрозащитную мембрану «ИЗОСПАН А» на контррейку 40*30. Обшивка соответствует требованиям по толщине СП 31-105.

УЗНАТЬ БОЛЬШЕ ОБ ИМИТАЦИИ БРУСА
ПОЛЫ
specification-description

Доска пола 135х28 сорт "АВ" 

Влажность 10-15%.  Доска пола изготовлена из еловых заготовок зимней рубки на Архангельском лесозаготовительном комбинате. Сушка древесины в Финских сушильных камерах  Tekmawood Jartek. Изготовление профиля на современных семишпиндельных станках. Beaver PRO. Монтаж через пароизоляционную пленку ИЗОСПАН "В" fix с двойной интегрированной клейкой лентой по всей длине рулона. Настил пола состветствует требованиям по толщине  СП 31-105.

Черновой пол: Черновой пол: обрезная доска  100*25 1-й сорт с шагом 50.

УЗНАТЬ БОЛЬШЕ О ДОСКЕ ПОЛА
ВНУТРЕННЯЯ ОБШИВКА
specification-description

ИМИТАЦИЯ БРУСА 145х16 сорт "АВ"

Влажность 10-15%. Сорт соответствует ГОСТ 8242-88  Монтаж через пароизоляционную пленку ИЗОСПАН "В" fix с двойной интегрированной клейкой лентой по всей длине рулона. Обшивка состветствует требованиям по толщине СП 31-105.

УЗНАТЬ БОЛЬШЕ ОБ ИМИТАЦИИ БРУСА
ОКНА
specification-description

Окна ПВХ панорамные; двухкамерный стеклопакет. Снаружи выполнена ламинация цвет "ГРАФИТ". Размер и количество согласно проекта.

ВХОДНЫЕ И МЕЖКОМНАТНЫЕ ДВЕРИ
specification-description

Входные двери: ПВХ с наружной ламинацией "ГРАФИТ" и металлическая 2000*800 (согласно проекта)

Межкомнатные: МДФ 2000х800 согласно проекта

ПРИМЕЧАНИЯ:
specification-description

-Строительство возможно в радиусе до 100 км от Ярославля

-В базовую комплектацию не включена: доставка материалов и вагон-бытовки; крылечки, пристройки (не входящие в площадь дома, указанную в карточке проекта); малярные работы; цокольные ступени; мансардная лестница; инженерные коммуникации

-По семейной ипотеки полная стоимость дома не может превышать 6.000.000р

КРАТКОЕ ОПИСАНИЕ

В комплектацию ПОД КЛЮЧ входит:
Фундамент на винтовых сваях;
фрезеровка каркаса на нашей производственной базе;
сборка каркаса дома из сухого строганного пиломатериала первого сорта;
наружная обшивка дома;
кровля крыши;
теплоизоляция стен, пола, потолков;
настил пола;
внутренняя обшивка стен;
монтаж окон и входной двери.
Строительство ведётся в строгом соответствии с СП 31-105. По Вашему желанию возможны любые изменения в планировке и комплектации дома .


Подробное описание >>>
Примеры наших работ
×

Поиск проектов

Общая площадь м2

Количество спален

Цена руб.

Обратный звонок
Ваше имя*
Номер телефона*
Нажимая на кнопку, вы даёте согласие на обработку персональных данных и соглашаетесь с политикой конфиденциальности
close